Propiété
Propiété
VISITE LIBRE
2026-Apr-19 | 14:00 - 16:00
Description
COUP DE COEUR ASSURÉ!
*Grand jumelé offrant une superficie généreuse *Terrain spacieux de plus de 6 000 pi²,rare pour un jumelé. *Propriété ayant eu un seul propriétaire, entretenue avec soin au fil des années. *4 chambres à coucher à l'étage. *2 salles de bain complètes + 1 salle d'eau. *Cuisine élégante avec comptoirs de granite. *Planchers de bois franc au rez-de-chaussée et à l'étage. *Nouveau plancher de céramique à la cuisine. *Sous-sol entièrement aménagé avec plancher de bambou, offrant la possibilité d'une cinquième chambre. *Entrée en pavé uni, ajoutant charme et durabilité à la propriété. *Superbe cour aménagée avec piscine creusée 12 x 24 chauffée, système au sel. *Située dans un secteur recherché de Sainte-Rose, Laval, à proximité des écoles, parcs et services, avec un accès rapide à l'autoroute 15. *Quartier homogène, sécuritaire et idéal pour la vie de famille.
Inclus : Fixtures, stores, rideaux, lave-vaisselle (2026), deux thermopompes murales (2023 et 2025), piscine creusée et ses accessoires, le tout en bon état de fonctionnement mais donné sans garantie légale de qualité.
Emplacement
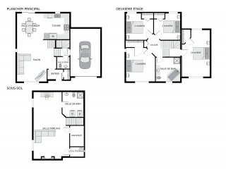
Détails des pièces
| Chambre | Dimensions | Niveau | Revêtement |
|---|---|---|---|
| Hall d'entrée | 6.10 x 3.8 P | Rez-de-chaussée | Céramique |
| Cuisine | 10.4 x 10.8 P | Rez-de-chaussée | Céramique |
| Salle à manger | 10.8 x 11 P | Rez-de-chaussée | Bois |
| Salon | 11.10 x 17.6 P | Rez-de-chaussée | Bois |
| Salle d'eau | 9.6 x 5.4 P | Rez-de-chaussée | Céramique |
| Chambre à coucher principale | 11.4 x 18.6 P | 2ième étage | Bois |
| Chambre à coucher | 11.2 x 15.2 P | 2ième étage | Bois |
| Chambre à coucher | 12.8 x 10.8 P | 2ième étage | Bois |
| Chambre à coucher | 11 x 10.8 P | 2ième étage | Bois |
| Salle familiale | 25.4 x 21 P | Sous-sol | Bois |
Caractéristiques
| Sous-sol | 6 pieds et plus, Totalement aménagé |
|---|---|
| Stationnement | Au garage, Extérieur |
| Proximité | Autoroute/Voie rapide, École primaire, École secondaire, Garderie/CPE, Golf, Parc-espace vert, Piste cyclable, Transport en commun |
| Mode de chauffage | Autre, Plinthes électriques |
| Toiture | Bardeaux d'asphalte |
| Fondation | Béton coulé |
| Revêtements | Brique |
| Piscine | Chauffée, Creusée |
| Aménagement du terrain | Clôturé |
| Équipement disponible | Cour privée, Échangeur d'air, Porte de garage électrique, Thermopompe murale |
| Garage | Intégré, Simple largeur |
| Système d'égouts | Municipal |
| Approvisionnement en eau | Municipalité |
| Allée | Pavé uni |
| Zonage | Résidentiel |